Toi Toi, 7010
Price by Negotiation
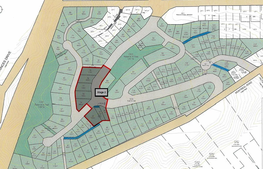
This is the ultimate investment site not available anywhere else in the region. With resource consent in place for 4 multi level townhouses, this is a unique offering. Build them all on one title and hold as a cashflow property, separate them onto unit titles or modify the consent to turn into freehold units, the choice is yours. Lot 89 is approximately 990sqm with a mostly flat contour, an amazing sun aspect and borders the future Reserve, making it a premium offering. You could even explore the option with the developer to turn the end unit into a commercial unit- it would be a great spot for a cafe for the subdivision! Concept Plans for a 4 unit development are available upon request or bring your own plans to the table. The Golden Elm Rise Development is conveniently located only a short 5min drive or 10min cycle into the Nelson CBD with plenty of outstanding eateries, shopping and city living. Close proximity to the Nelson Hospital offers fantastic job and career opportunities and public transport will be connected in the very near future. Titles are expected late April, so get in today and secure your section with only a $10,000 deposit. Further Information can be accessed by copying and pasting the following Link in your browser: https://www.agentsend.com/FVMB